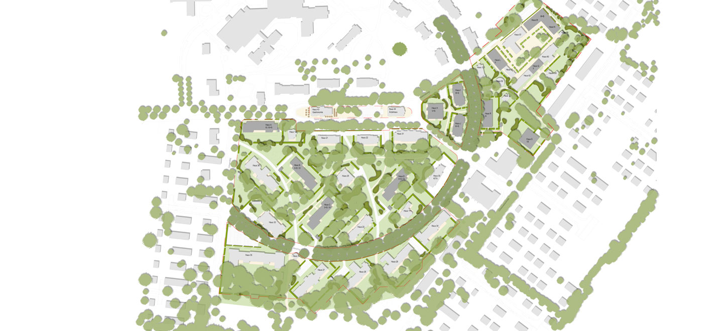
Unter den Linden (ehem. Ox-Park / AK Ochsenzoll)

Hamburg-Langenhorn
2012 - 2020

Architekten

Schenk + Waiblinger / Störmer Murphy and partners / raumwerk / kadawittfeldarchitektur

Bauherr

Patrizia

Fläche

11 ha